3 rooms - VALMONT (VALM33)
Presentation
Les Bruyères - Résidence Les Valmonts B n°33.
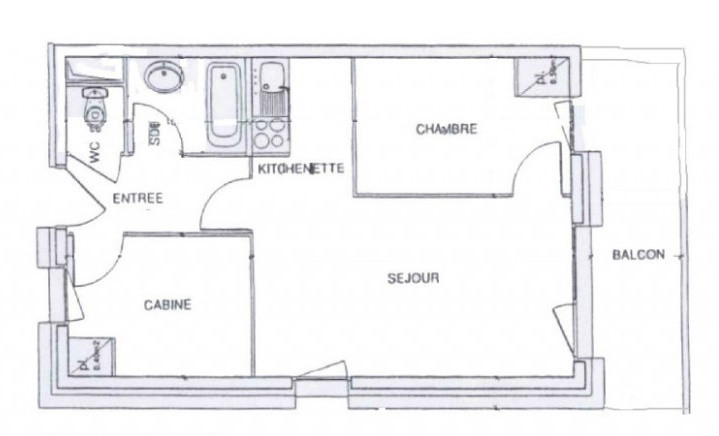
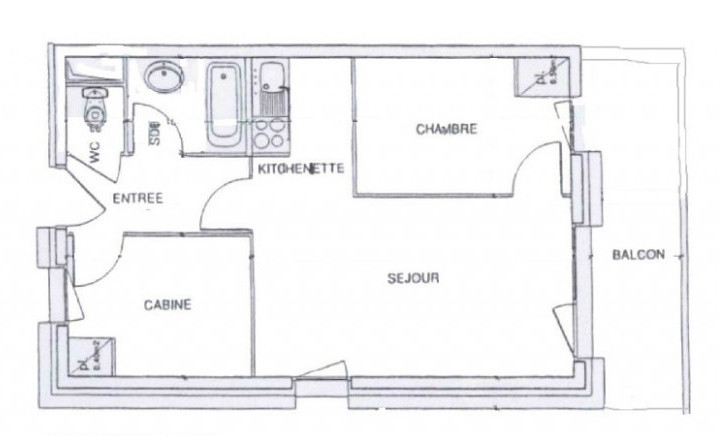
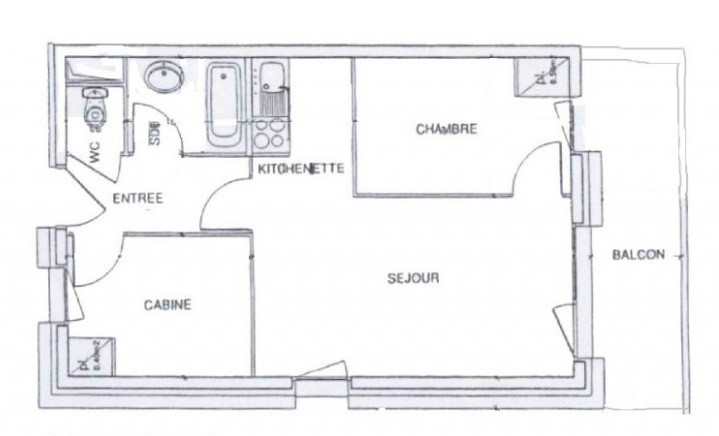
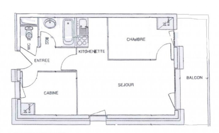
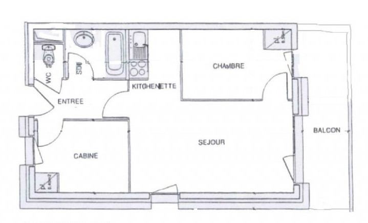
Magnificent 3-room apartment, sleeps 5, 40m², 3rd floor with lift, south-facing balcony, mountain and piste views.
Residence at the foot of the slopes and close to the Piou-Piou village
Kitchen: 3 ceramic hobs, extractor hood, large fridge with freezer compartment, combi-grill microwave, dishwasher, coffee machine, Nespresso coffee machine, toaster, kettle, fondue set.
Living room : Flat-screen TV, DVD player
Bedroom 1: 1 double bed (140x190cm)
Bedroom 2: 1 double bed (140x190cm) + 1 single bunk bed
Bathroom: washbasin, Italian shower, towel dryer, hairdryer.
Separate WC.
Flat equipped with duvets (2 double duvets and 1 single duvet) and pillows (60x60).
Ski locker on level 0 of the residence
Non-smoking flat, pets not allowed
Balcony: table and chairs, sun loungers.
Free outdoor parking nearby (100m)
Category : Comfort
Resort label: 4 Flocons Or
Prefectural classification: 2*
Registration number : 73257010111DP
Sheets and towels not included.
On reservation and subject to availability: final cleaning (€90), rental of covered parking space in the Bruyères district (€70 per week), disposable comfort duvet cover kit for 1 person (€13), disposable comfort duvet cover kit for 2 persons (€18), bathroom linen (€9 per set of 2 towels), bath mat (€3), hire of mini wifi box (€39 per week).
Tourist tax: 1.10€ per person per night (free for children under 18).
Deposit 1000€ (credit card )
Quiet residence with lift, direct access to the slopes (blue run immediately accessible), located right next to the Bruyères gondola lift. Access to the lively Bruyères district on foot (50m) with shops, ski shops, mini-market, restaurants, cinema, Piou-Piou Club for children (aged 30 months to 6 years), French Ski School assembly.
Magnificent 3-room apartment, sleeps 5, 40m², 3rd floor with lift, south-facing balcony, mountain and piste views.
Residence at the foot of the slopes and close to the Piou-Piou village
Kitchen: 3 ceramic hobs, extractor hood, large fridge with freezer compartment, combi-grill microwave, dishwasher, coffee machine, Nespresso coffee machine, toaster, kettle, fondue set.
Living room : Flat-screen TV, DVD player
Bedroom 1: 1 double bed (140x190cm)
Bedroom 2: 1 double bed (140x190cm) + 1 single bunk bed
Bathroom: washbasin, Italian shower, towel dryer, hairdryer.
Separate WC.
Flat equipped with duvets (2 double duvets and 1 single duvet) and pillows (60x60).
Ski locker on level 0 of the residence
Non-smoking flat, pets not allowed
Balcony: table and chairs, sun loungers.
Free outdoor parking nearby (100m)
Category : Comfort
Resort label: 4 Flocons Or
Prefectural classification: 2*
Registration number : 73257010111DP
Sheets and towels not included.
On reservation and subject to availability: final cleaning (€90), rental of covered parking space in the Bruyères district (€70 per week), disposable comfort duvet cover kit for 1 person (€13), disposable comfort duvet cover kit for 2 persons (€18), bathroom linen (€9 per set of 2 towels), bath mat (€3), hire of mini wifi box (€39 per week).
Tourist tax: 1.10€ per person per night (free for children under 18).
Deposit 1000€ (credit card )
Quiet residence with lift, direct access to the slopes (blue run immediately accessible), located right next to the Bruyères gondola lift. Access to the lively Bruyères district on foot (50m) with shops, ski shops, mini-market, restaurants, cinema, Piou-Piou Club for children (aged 30 months to 6 years), French Ski School assembly.
Your advantages with this accommodation
- Location :
- Ski in / ski out (under condition that the slope is open)
- Your advantages with this accommodation :
- Up to 27% off your ski passes (depending on the period, only in presale).
- All season long, discounts on your ski equipment rentals.
Location Information
- District :
- Les Bruyères
- Name of the residence / chalet :
- Les Valmonts
- Exposure :
- South facing
- Location :
- Ski in / ski out (under condition that the slope is open)
- District :
- Les Menuires
Summary
- Balcony / Terrace

- South exposure

- Dishwasher

Equipment
- Elevator :
- Elevator
- Kitchen equipment :
- Microwave
- Dishwasher
- Electric kettle
- Toaster
- Living room equipment :
- TV
- Salon :
- TV
- Balcony/terrace :
- Balcony / terrace
- Bathroom :
- Hair dryer
- Ski locker :
- Ski rack
Resort's Situation Map
Destination
Rue des Montagnettes
Résidence Les Valmonts
73440
LES BELLEVILLE
GPS coordinates
Latitude : 45.311873
Longitude : 6.543584
Opinion
Score on website :
(5 opinion customer)
4.6
/ 5
Opinion customer
April 2025
Andrea
Score :
3
/ 5
Qualité de l'accueil
Le logement correspond au descriptif
Propreté du logement
Décoration du logement
Équipement du logement
Confort de la literie
Review written on 08/04/2025
March 2025
Bertrand
Score :
5
/ 5
Logement bien situé, propre et confortable.
Qualité de l'accueil
Le logement correspond au descriptif
Propreté du logement
Décoration du logement
Équipement du logement
Confort de la literie
Review written on 01/04/2025
Score according to profile











































